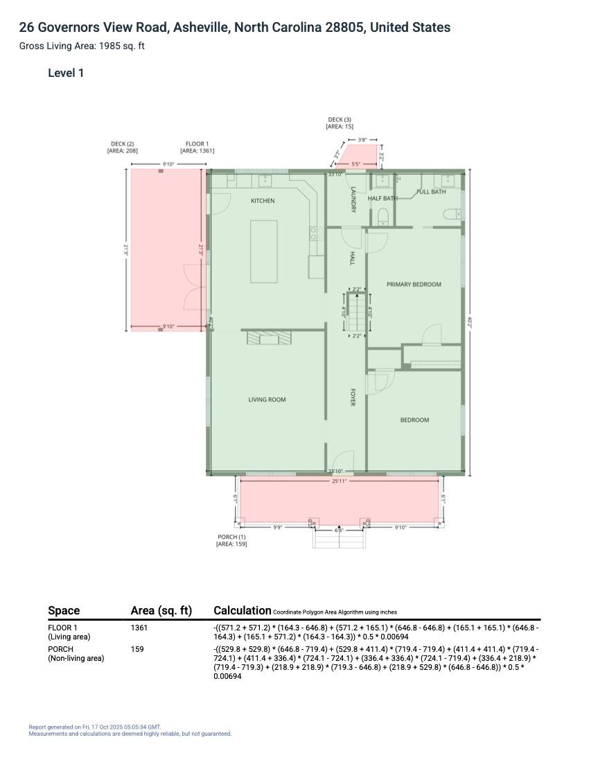
26 Governors View Road, Asheville, NC

NEXT
PREV
$619,000

($312/sqft)

List Status: Active
26 Governors View Road
Asheville, NC 28805


3 beds
2 baths
1985 living sqft
Top Features
  • Built in  1947
  • Style: Cottage
  • Single Family Residence
Description
Property Details
Additional Information
Above Grade Finished Area
1985
Additional Parcels YN
false
Appliances
Dishwasher, Microwave, Oven, Refrigerator
Association YN
false
Assumable
No
Basement YN
false
Bathrooms Total Integer
3
Bedroom Main
2
Bedroom Upper
1
CCR Subject To
Undiscovered
Carport YN
false
City Taxes Paid To
Asheville
Construction Type
Site Built
ConstructionMaterials
Hardboard Siding
Cooling
Central Air, Heat Pump
CumulativeDaysOnMarket
36
Deed Reference
6475
Door Features
French Doors, Insulated Door(s)
Down Payment Resource YN
1
Elementary School
Bell
Elevation
2000
Fencing
Partial
Fireplace Features
Family Room
Fireplace YN
true
Flooring
Wood
Foundation Details
Crawl Space
Full Bath Main
1
Full Bath Upper
1
Garage YN
false
HOA Subject To Dues
No
Half Bath Main
1
Heating
Heat Pump
High School
AC Reynolds
Interior Features
Storage
Laundry Features
Main Level
Levels
Two
Lot Features
Wooded
Lot Size Area
0.79
Lot Size Units
Acres
Middle Or Junior School
AC Reynolds
Mls Major Change Type
Back On Market
New Construction YN
false
Open Parking YN
false
Other Structures
Shed(s)
Parcel Number
965864013900000
Parking Features
Driveway
Patio And Porch Features
Covered, Deck
Plat Reference Section Pages
1560
Previous List Price
646000
Public Remarks
Price Improvement! Rare .79-acre private lot near downtown hosts this custom-rebuilt 1947 bungalow—renovated down to the studs with exceptional craftsmanship. Every inch reflects quality: white oak floors, handcrafted tile and woodwork, and a stone fireplace anchoring the living room. The vaulted kitchen features skylights and custom French doors opening to a covered deck, large stone patio, and expansive fenced backyard—perfect for hosting and outdoor living. The main level offers a primary suite with ensuite bath, study/bedroom, half-bath, and laundry. Upstairs includes a guest suite with full bath and abundant dry, insulated storage. Upgrades include all-new systems, new kitchen and appliances, plumbing, electric, on-demand water heater, closed-cell foam insulation, and seven new double-pane windows (2023). Ipe hardwood front porch and large shed complete this private, move-in-ready retreat just minutes from downtown.
Road Responsibility
Publicly Maintained Road
Road Surface Type
Gravel, Paved
Roof
Metal
Room Count
1
Senior Community YN
false
Sewer
Public Sewer
Sq Ft Total Property HLA
1985
SqFt Main
1361
SqFt Unheated Total
294
SqFt Unheated Upper
294
SqFt Upper
624
Syndicate Participation
Participant Options
Syndicate To
CarolinaHome.com, IDX, IDX_Address, Realtor.com
Tax Assessed Value
164000
Utilities
Solar
Water Source
City
Window Features
Insulated Window(s)
Zoning Specification
RS4
Neighborhood Map
Popup

Property Photos
Listing Photo
Listing Photo
Listing Photo
Listing Photo
Listing Photo
Listing Photo
Listing Photo
Listing Photo
Listing Photo
Listing Photo
Listing Photo
Listing Photo
Listing Photo
Listing Photo
Listing Photo
Listing Photo
Listing Photo
Listing Photo
Listing Photo
Listing Photo
Listing Photo
Listing Photo
Listing Photo
Listing Photo
Listing Photo
Listing Photo
Listing Photo
Listing Photo
Listing Photo
Listing Photo
Listing Photo
Listing Photo
Listing Photo
Listing Photo
Listing Photo
Listing Photo
Listing Photo
Listing Photo
Listing Photo
Listing Photo
Listing Photo
Listing Photo
Listing Photo
Listing Photo
Listing Photo
Listing Photo
Listing Photo
Listing Photo
Listing Photo
Listing Photo

MLS #CAR4314415 Listing courtesy of Nexthome Partners provided by Canopy MLS as distributed by MLS GRID.

Similar Listings


View More Similar Listings >