3 Pinnacle View Road, Asheville, NC

NEXT
PREV
$575,000

($327/sqft)

List Status: Active
3 Pinnacle View Road
Asheville, NC 28803


4 beds
3 baths
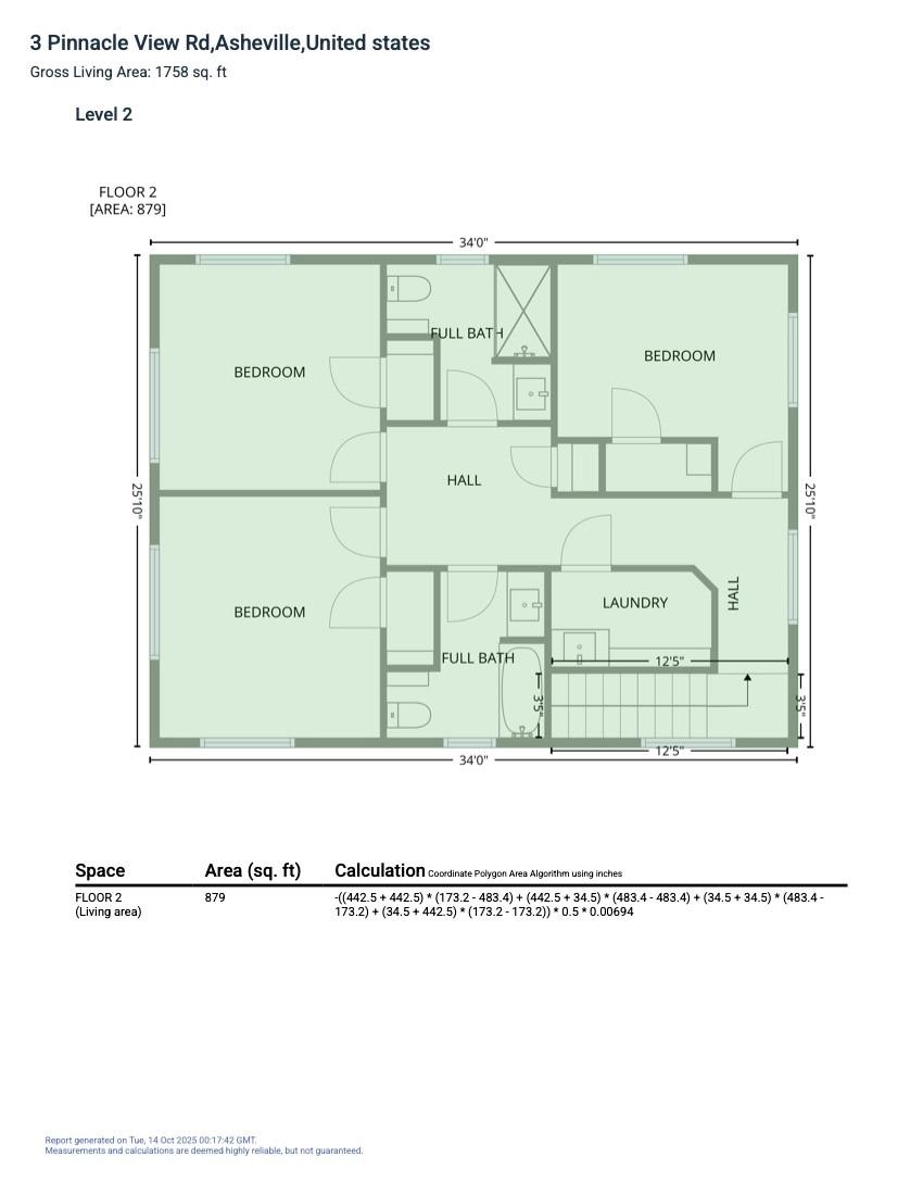
1758 living sqft
Top Features
  • Built in  2025
  • Style: Modern
  • Single Family Residence
Description
Property Details
Additional Information
Above Grade Finished Area
1758
Additional Parcels YN
false
Appliances
Dishwasher, Oven, Refrigerator
Association YN
false
Assumable
No
Basement YN
false
Bathrooms Total Integer
4
Bedroom Main
1
Bedroom Upper
3
Builder Name
Holcomb Mountain Homes LLC
CCR Subject To
Undiscovered
Carport YN
false
City Taxes Paid To
No City Taxes Paid
Construction Type
Site Built
ConstructionMaterials
Hardboard Siding
Cooling
Central Air, Electric
CumulativeDaysOnMarket
25
Deed Reference
6421
Development Status
Under Construction
Directions
From downtown Asheville, head east on Clayton Street / US-70A / US-74A toward Tunnel Road. Merge onto I-240 East via the ramp toward US-70 / Biltmore / Beaucatcher Tunnel. Take Exit toward US-70 East / Tunnel Road and continue through the Beaucatcher Tunnel. After exiting the tunnel, stay on US-70 / South Tunnel Road as it curves east. Turn left onto Long Shoals Road / NC-146 (you’ll see signage). Follow Long Shoals Road for a bit, then turn left onto School Road East. From School Road East, turn right onto Pinnacle View Road. Continue on Pinnacle View Road to reach 1 Pinnacle View Rd.
Down Payment Resource YN
1
Elementary School
Oakley
Elevation
2000
Fireplace YN
false
Flooring
Vinyl
Foundation Details
Crawl Space
Full Bath Main
1
Full Bath Upper
2
Garage YN
false
Half Bath Main
1
Heating
Electric, Heat Pump
High School
AC Reynolds
Interior Features
Attic Finished, Kitchen Island
Laundry Features
Inside
Levels
Two
Lot Features
Cleared
Lot Size Area
0.15
Lot Size Units
Acres
Middle Or Junior School
AC Reynolds
Mls Major Change Type
Price Decrease
New Construction YN
true
Open Parking Spaces
3
Open Parking YN
true
Parcel Number
965754684500000
Parking Features
Driveway
Patio And Porch Features
Covered, Side Porch
Plat Book Slide
0247
Plat Reference Section Pages
1928
Previous List Price
599990
Proposed Completion Date
2025-10-10
Public Remarks
Brand-new construction in sought-after Oakley! This 4BR/3.5BA home features a main-level master suite, open layout, and elegant floors throughout. Thoughtfully designed with a crawlspace plus attic storage for extra space. Enjoy the covered deck and entryway, perfect for relaxing or entertaining. Three-car parking provides plenty of room for family and guests. Conveniently located close to downtown Asheville but outside city limits—offering both accessibility and lower taxes. A modern home that blends comfort, function, and style in one of Asheville’s most desirable neighborhoods.
Road Responsibility
Publicly Maintained Road
Road Surface Type
Concrete, Paved
Roof
Architectural Shingle
Room Count
1
Senior Community YN
false
Sewer
Public Sewer
Sq Ft Total Property HLA
1758
SqFt Main
879
SqFt Upper
879
Subdivision Name
Oakley
Syndicate Participation
Participant Options
Syndicate To
CarolinaHome.com, IDX, IDX_Address, Realtor.com
Tax Assessed Value
296400
Water Source
City
Window Features
Insulated Window(s)
Zoning Specification
R3MA
Neighborhood Map
Popup

Property Photos
Listing Photo
Listing Photo
Listing Photo
Listing Photo
Listing Photo
Listing Photo
Listing Photo
Listing Photo
Listing Photo
Listing Photo
Listing Photo
Listing Photo
Listing Photo
Listing Photo
Listing Photo
Listing Photo
Listing Photo
Listing Photo
Listing Photo
Listing Photo
Listing Photo
Listing Photo
Listing Photo
Listing Photo
Listing Photo
Listing Photo
Listing Photo
Listing Photo
Listing Photo
Listing Photo
Listing Photo
Listing Photo
Listing Photo
Listing Photo
Listing Photo
Listing Photo
Listing Photo
Listing Photo
Listing Photo
Listing Photo
Listing Photo
Listing Photo
Listing Photo
Listing Photo
Listing Photo
Listing Photo
Listing Photo
Listing Photo

MLS #CAR4303110 Listing courtesy of Nexthome Partners provided by Canopy MLS as distributed by MLS GRID.

Similar Listings


View More Similar Listings >